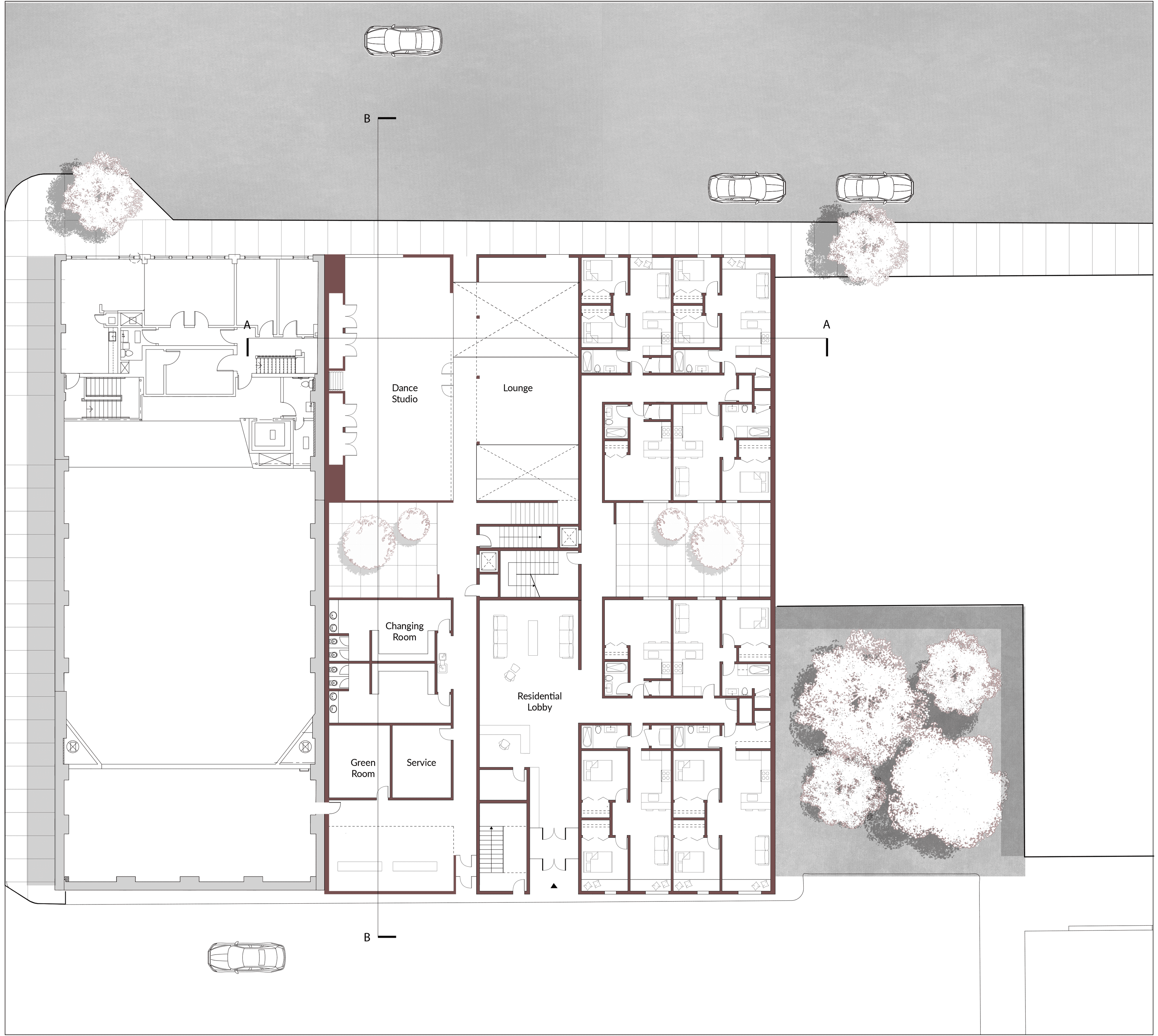
The design for the Kansas City Friends of Alvin Ailey Dance Center, located on the historic 18th and Vine district’s main street, introduces a new dance studio, gallery, classrooms, and housing. The design aims to establish a strong presence while honoring the site’s historical context.
Copper, known for its timeless beauty and natural patina, complements the surrounding context, while wood and brick add warmth to create an inviting atmosphere where everyone feels free to dance.